I have finished my Industrial Design and drawn it up in AutoCad. Now all I have to do is fix it up a bit and grab a 4' x 8' piece of plywood and take it off to the Architecture Ranch to run it on the cnc router!!
Green Lines = Outside Cuts
Red Lines = Inside Cuts
Purple Lines = 1/8" depth cut
It is going to be a coffee table that is 1'9" high and 3' by 4'. I am going to make all the scraps into a sculpture or something unique.
Sunday, October 24, 2010
Tuesday, October 19, 2010
Symposium Thing-a-ma-bobber.... (No Class Day!!)
Instead of going to class on October 18, 2010, I was able to go to a session at the research symposium in Langford. I decided to go to the one over "Milestones in Urban Revitilization" in the Wright Gallery at 3:00 pm. This lecture was taught by June Martin. She did research over sight design and development in East Athens, Georgia. It was mainly done in an area prone to crime and illegal activities.
This study was done over many years ranging from 1994-2009. The main target to change and improve was referred to as the iron triangle. This area was a place that had one of the highest amounts of crime related to.
They decided to improve many parts of this area, and prioritized two housing areas that were run down and utilized by many people for illegal activities. Once this was improved, they were able to bring many residents in that would never consider the area with the previous conditions.
They learned many different things that were extremely important to turn a dying neighborhood into a better living place. One of the most important lessons was to actually visit the site. They visited the area on a regular basis to see how it improved as they made certain changes and to see if they could make it better in any way.
Some East Athens Lessons Learned include:
1. Economic Improvement
2. Housing Developement
3. Improved Policing
4. Recreation and Cultural Assetts
5. Improved access to Services
They learned to get this project done they needed:
1. Commitment from Community
2. Commitment of Resources
3. Empowerment of Community
Overall I thought it was an interesting topic of how much work and the kind of decisions it takes to recreate a community and improve the basic problems it has.
This study was done over many years ranging from 1994-2009. The main target to change and improve was referred to as the iron triangle. This area was a place that had one of the highest amounts of crime related to.
They decided to improve many parts of this area, and prioritized two housing areas that were run down and utilized by many people for illegal activities. Once this was improved, they were able to bring many residents in that would never consider the area with the previous conditions.
They learned many different things that were extremely important to turn a dying neighborhood into a better living place. One of the most important lessons was to actually visit the site. They visited the area on a regular basis to see how it improved as they made certain changes and to see if they could make it better in any way.
Some East Athens Lessons Learned include:
1. Economic Improvement
2. Housing Developement
3. Improved Policing
4. Recreation and Cultural Assetts
5. Improved access to Services
They learned to get this project done they needed:
1. Commitment from Community
2. Commitment of Resources
3. Empowerment of Community
Overall I thought it was an interesting topic of how much work and the kind of decisions it takes to recreate a community and improve the basic problems it has.
Monday, October 11, 2010
Behavioral Setting Sketch Model One Throw-a-way...
This is an edited picture of my preliminary model for my behavioral setting. There is still a lot of work that I need to do on it, mainly involving scrapping the entire plans and starting over. The next one will look somewhat similar with roofing, but different floor plans, smaller square footage, and the garage will no longer be so massive.
This is the East side looking towards the lake with the deck that has not been completed yet.
This is the West side looking back towards the road. This looks nothing like how the next one will look.
This is the East side looking towards the lake with the deck that has not been completed yet.
This is the West side looking back towards the road. This looks nothing like how the next one will look.
Monday, October 4, 2010
Work on Behavioral Setting.
I went out and surveyed the land that this project is to be made for. It is on a lake and very nicely secluded from others. The wind generally blew from the East when I was out there.
After many bubble diagrams and scratch outs, this was the final floor plans that I had for Monday. I am definitely going to change a bunch of things up, but the general idea is there.
After many bubble diagrams and scratch outs, this was the final floor plans that I had for Monday. I am definitely going to change a bunch of things up, but the general idea is there.
Let's Pretend this is from last week...
This is the final product of my micro dwelling. I had to do a bit of editing of the picture to make it look better.
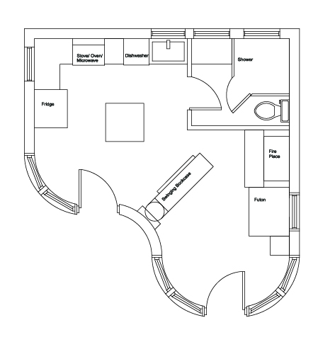
This is the basic Floor Plan of my Micro Dwelling.
This is a Cross-Section of my Micro Dwelling.
This is a picture of the Micro Dwelling Model I built to 1/2" = 1'. I had to pull an all nighter to make sure it was done perfectly. It turned out much better than I expected.
This is the basic Floor Plan of my Micro Dwelling.
This is a Cross-Section of my Micro Dwelling.
This is a picture of the Micro Dwelling Model I built to 1/2" = 1'. I had to pull an all nighter to make sure it was done perfectly. It turned out much better than I expected.
Subscribe to:
Comments (Atom)






